設計師:錢晨飛(江北旗艦店 主案設計師)
戶型詳情:文承楠苑130平米 新中式風格
案例說明
因房子公共區域不算很大,擔心擺放很中式的家具空間會很厚重,不舒適。所以整體采用現代的處理手法,點綴一些中式元素,比如中式的圈椅、掛畫等,讓空間看起來既簡潔、舒適,又有中式味道。
“好色”是設計師的天性,當和業主同時喜歡一樣的事物的時候,就會產生有趣的故事!一次大膽的色彩嘗試,不僅傳達了設計師的創作思考,也反映出來主人的特立獨行。 地面灰色的瓷磚,搭配米灰色的乳膠漆,因為木質顏色比較深,擔心空間過于沉悶,于是采用了比較亮麗的綠色調,特別大膽的嘗試就是采用了米色配金色的中式掛畫,讓整個空間瞬間增色不少。
公共空間處理的比較干凈利落,沒有多余的裝飾,中式的邊幾、掛畫還有花瓶,房間里充滿了濃濃的中式文化韻味。
臥室保持了清新的浪漫的氛圍,重色的家具讓空間顯得大氣穩重,簡單大方,讓睡眠空間保持安靜而私謐!
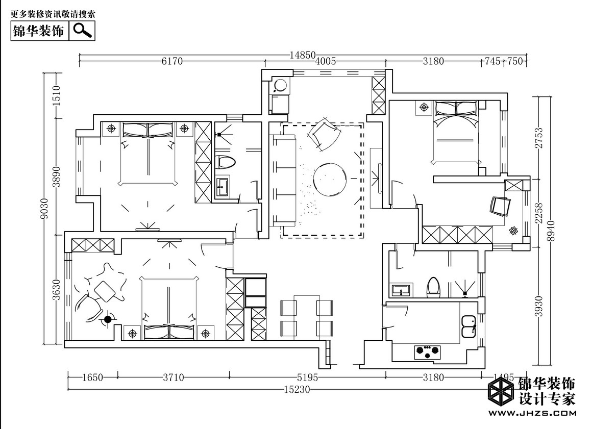
原始結構圖↓

平面布置圖↓

效果圖↓

效果圖↓

想了解更多文承楠苑戶型資料么?
錦華裝飾準備了文承楠苑各戶型全套設計方案、工程量報價、參考效果圖、主材搭配方案.歡迎您和網絡客服取得聯系,預約來店面詳細溝通.錦華裝飾,設計專家!.
江蘇家裝示范品牌
代表地區優秀設計聲音
集28年工程管理經驗之大成
省時、省力更省心
| 走進錦華 | 設計團隊 | 作品列表 | 戶型解析 | 裝修百科 |
關注錦華公眾號
|
瀏覽手機官網 |
全國熱線 025 86550815 |
||||||||||
| 新聞列表 | 錦華文化 | 堂杰國際設計 | 1865旗艦店 | 極簡 | 中古 | 秦淮金茂府 | 常見問題 | ||||||||||
| 全國分公司 | 錦華招聘 | 河西旗艦店 | 鼓北旗艦店 | 法式 | |||||||||||||
| 錦華簡介 | 聯系我們 | 城東旗艦店 | 江寧旗艦店 | 歐式古典 | 北歐 | 中交錦方 | |||||||||||
| 資質榮譽 | 法律聲明 | 江北旗艦店 | 江浦店 | 美式田園 | 新古典 | 溧水玖宸府 | |||||||||||